Piso en venta

Valencia, Quatre Carreres
229.000 €
2 dormitorios 2 dormitorios
64 m2 64 m2
1 baño 1 baño

Piso en venta

Valencia, Quatre Carreres

Descripción anuncio

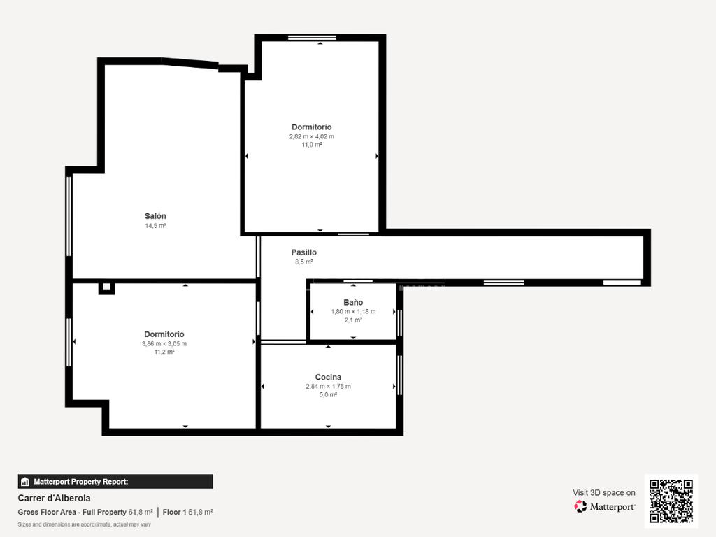
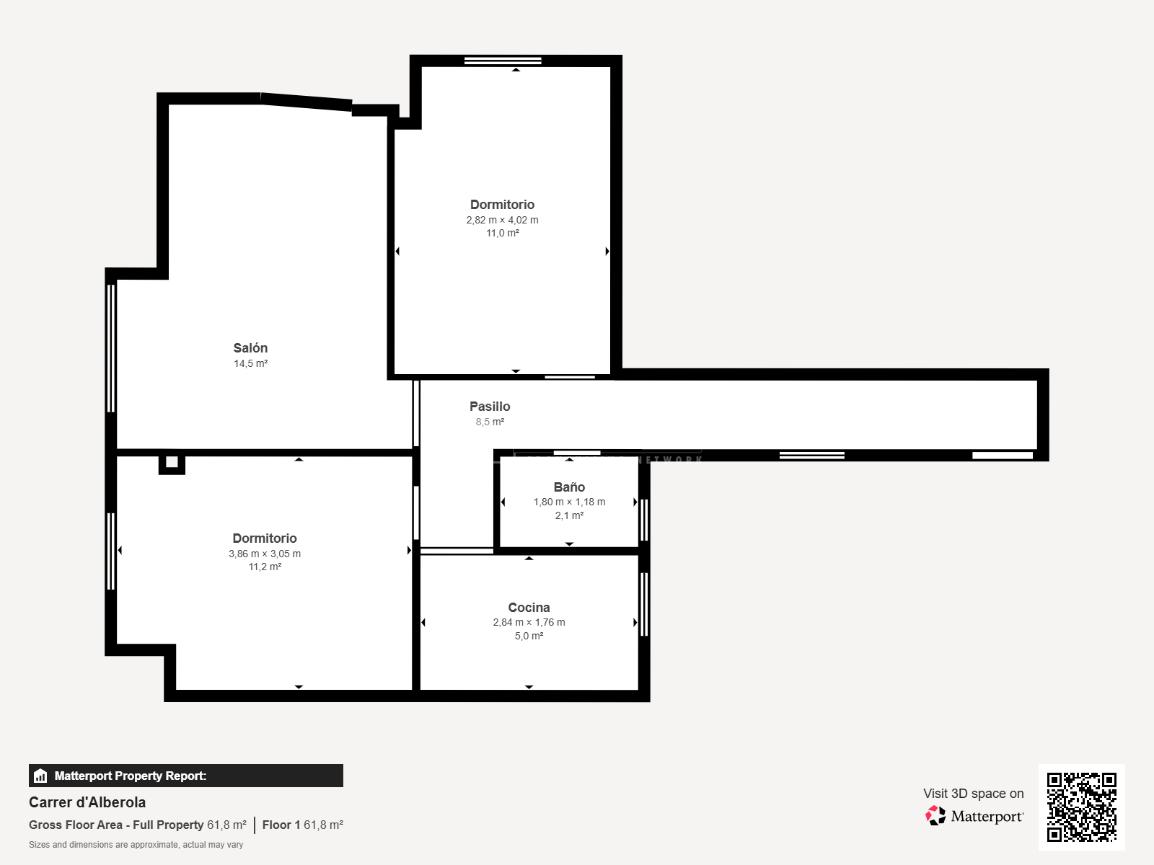
Descubre esta acogedora vivienda en el barrio de En Corts, en el distrito de Quatre Carreres, Valencia. Con una ubicación céntrica, esta propiedad de 64 m² ofrece comodidad y funcionalidad. Cuenta con dos dormitorios dobles, ideales para familias o parejas que buscan espacio adicional. El baño y la cocina han sido recientemente reformados, brindando un ambiente moderno y fresco. Las ventanas climalit nuevas aseguran un excelente aislamiento térmico y acústico. Disfruta de un amplio balcón esquinero, perfecto para relajarse al aire libre. Situada en la segunda planta de un edificio con ascensor, esta vivienda ofrece fácil acceso y comodidad. Además, su ubicación frente a Mercadona facilita las compras diarias. El aire acondicionado garantiza confort durante todo el año. Construida en 1966, esta propiedad combina el encanto de lo clásico con las comodidades modernas. Una oportunidad única para vivir en el corazón de Valencia.

Ver más

Características

Ref.:
535221
Aire acondicionado:
Independiente (Frío / Calor)
Libre:
No
Tipo de inmueble:
Popular
Año de construcción:
1966
Ver más
Precio Precio
229.000 €
Cuota mensual Cuota mensual
€ 725 / mes

Clase energética

E
E
E
E
E
E
E
E
E
Consumo de energia:
146,62 kWh/m² año
Emisiones:
27,47 Kg CO2/m² año
Año de construcción:
1966

Servicios cercanos

Transporte público Transporte público
Bailén
Bailén
1,3 Km
Jesús
Jesús
1,3 Km
Valencia Joaquín Sorolla
Valencia Joaquín Sorolla
1,1 Km
Valencia - Estació del Nord
Valencia - Estació del Nord
1,4 Km
Marítim - Serrería
Marítim - Serrería
3,0 Km
Colegios Colegios
Colegio Salesianos - San Juan Bosco
230 m
Escuela Infantil Quatre Carreres
430 m
Colegio Martí Sorolla
470 m
Colegio Público Fernando de los Ríos
480 m
Instituto de Secundaria Fuente de San Luis
520 m
Farmacias Farmacias
Farmacia
170 m
Farmacia Vidal Simeón
540 m
Concha Espejo Cervello
750 m
Farmacia Marcos Bohiges
810 m
Gastaldi Rodrigo
930 m
Hospitales Hospitales
Hospital Universitari i Politècnic La Fe
1,3 Km
Hospital Vithas Nisa Virgen del Consuelo
1,6 Km
Clinica Dental Nord
2,1 Km
Hospital Universitari Doctor Peset
2,1 Km
Hospital Casa de la Salud
2,4 Km
Supermercados Supermercados
Mercadona
100 m
Supermercados
360 m
Aldi
380 m
Consum
460 m
Biosofia
810 m
Tiendas Tiendas
Todo complementos
380 m
Tiendas
510 m
Pepita & Grano Valencia
630 m
Repuestos Raelva S.L.
650 m
Frutas y Verduras Alimentacion
670 m
Bar Bar
Barraca castillo
330 m
Casa Mateo
350 m
Cafe Bar La Cantera
370 m
Motor West Bar
420 m
La Bella de Cadiz
800 m
restaurantes restaurantes
Restaurante Mas Blayet
160 m
Restaurantes
330 m
Saisua
360 m
Chino Nuevo Siglo
390 m
Casa Manolo
430 m
Ver más

Calcula tu hipoteca

Simple y sin compromiso
Entrada
%
al mes
Hipoteca
%
El resultado de esta simulación es orientativo. Los datos indicados no corresponden a condiciones reales de productos y no implican compromiso, obligación o vínculo jurídico-legal para el Grupo Tecnocasa.

Solicita un asesoramiento

Introduce tus datos
GRACIAS POR CONTACTAR CON NOSOTROS.
Esta oficina de Kìron se pondrá en contacto contigo lo antes posible para ofrecerte un asesoramiento financiero más completo y acorde a la información que nos has facilitado.
Franquiciado
Estudio Inmobiliario Barrio De Encorts Sl
Avda de la Plata, 11 46013 Valencia (V)
Avda de la Plata, 11 46013 Valencia (V) Zona: EN CORTS
LUNES A VIERNES DE : 09:30-14:00 / 17:00-20:30 SÁBADOS DE :10:00-14:00/ 17:00 - 20:00

Nuestro equipo


  • Diego Andrés Giménez
    Franquiciado
Franquiciado
Estudio Inmobiliario Barrio De Encorts Sl
Avda de la Plata, 11 46013 Valencia (V)

Franquiciado
Estudio Inmobiliario Barrio De Encorts Sl
Franquiciado
Estudio Inmobiliario Barrio De Encorts Sl

2026 Ibero Group Tecnocasa Services, S.L.U. - CIF B-65870776 - C/ Pallars, nº 1-3 Parque de Negocios Mas Blau II, 08820, El Prat de Llobregat (Barcelona-España). Red en franquicia - Cada sociedad franquiciada tiene su propio titular y es independiente del franquiciador.

Política de privacidad | Aviso legal | Pólitica de las Cookies | Información al consumidor | | Canal ético