Piso en venta

Valencia, Quatre Carreres
215.000 €
3 dormitorios 3 dormitorios
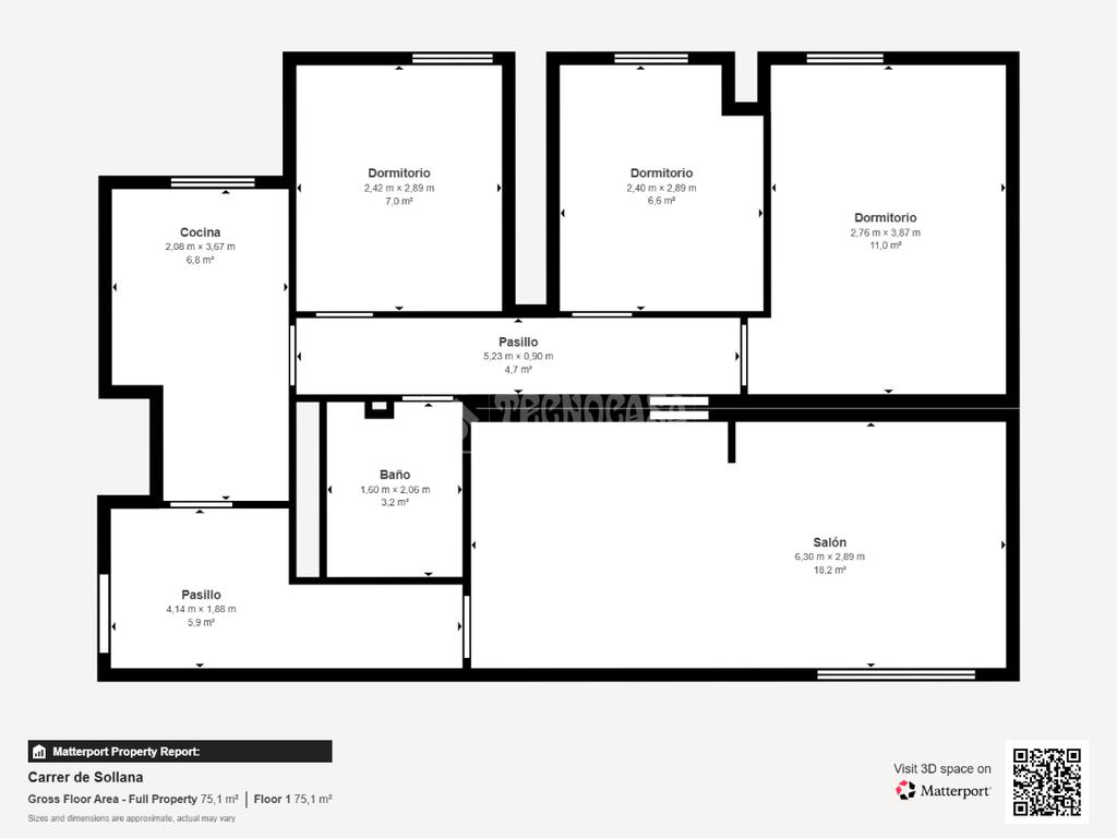
88 m2 88 m2
1 baño 1 baño

Piso en venta

Valencia, Quatre Carreres

Descripción anuncio

Descubre esta elegante vivienda en altura ubicada en el barrio de Na Rovella, dentro del prestigioso distrito de Quatre Carreres, Valencia, una de las zonas con mayor proyección de la ciudad.
Con 88 m² construidos, esta propiedad, situada en una séptima planta con ascensor, destaca por su luminosidad, amplitud visual y agradables vistas despejadas. Desde el salón-comedor se disfrutan vistas directas al nuevo Roig Arena, situado a escasos metros de la vivienda, un enclave emblemático que aporta valor, exclusividad y un notable potencial de revalorización.
La vivienda ofrece una distribución equilibrada y funcional, compuesta por tres dormitorios, un salón amplio y acogedor, cocina equipada y baño completo, encontrándose lista para entrar a vivir. Incorpora además aire acondicionado, garantizando el máximo confort durante todo el año.
Su excelente ubicación permite acceder cómodamente tanto al centro de Valencia como a la Ciudad de las Artes y las Ciencias, situados a tan solo 15 minutos, rodeada de todos los servicios, transporte público, comercios y una amplia oferta cultural y gastronómica.
Una propiedad ideal para quienes buscan calidad de vida, una ubicación estratégica y una vivienda con carácter, vistas y proyección futura.

Ver más

Características

Ref.:
642850
Aire acondicionado:
Independiente (Frío / Calor)
Ascensor:
Libre:
No
Tipo de inmueble:
De época
Año de construcción:
1977
Ver más
Precio Precio
215.000 €
Cuota mensual Cuota mensual
€ 681 / mes

Clase energética

Este inmueble está esperando clase energética
Año de construcción:
1977

Servicios cercanos

Transporte público Transporte público
Bailén
Bailén
1,6 Km
Jesús
Jesús
1,7 Km
Valencia - La Font de Sant Lluís
Valencia - La Font de Sant Lluís
1,3 Km
Valencia Joaquín Sorolla
Valencia Joaquín Sorolla
1,4 Km
Marítim - Serrería
Marítim - Serrería
2,8 Km
Colegios Colegios
Colegio Salesianos - San Juan Bosco
200 m
Escuela Infantil Quatre Carreres
210 m
Instituto de Secundaria Fuente de San Luis
300 m
Col·legi d'Educació Infantil i Primària Les Arts
320 m
Instituto de Secundaria Jordi de Sant Jordi
350 m
Farmacias Farmacias
Farmacia
350 m
Farmacia Marcos Bohiges
550 m
Farmacia Casaudoumecq
750 m
Farmacia Vidal Simeón
820 m
Farmacia El Saler
860 m
Hospitales Hospitales
Hospital Universitari i Politècnic La Fe
1,3 Km
Hospital Vithas Nisa Virgen del Consuelo
1,9 Km
Clinica Dental Nord
2,0 Km
Hospital Universitari Doctor Peset
2,3 Km
Hospital Casa de la Salud
2,4 Km
Supermercados Supermercados
Mercadona
390 m
Consum
490 m
Supermercados
570 m
Aldi
640 m
Dia
940 m
Tiendas Tiendas
Tiendas
530 m
Frutas y Verduras Alimentacion
620 m
Repuestos Raelva S.L.
660 m
Horno Blanca
660 m
Todo complementos
690 m
Bar Bar
Cafe Bar La Cantera
390 m
Casa Mateo
390 m
Barraca castillo
640 m
Motor West Bar
750 m
Casa Toni
780 m
restaurantes restaurantes
Restaurante Mas Blayet
160 m
Restaurantes
290 m
Casa Jose - Bodega la Mancha
360 m
Chino Nuevo Siglo
440 m
Saisua
450 m
Ver más

Calcula tu hipoteca

Simple y sin compromiso
Entrada
%
al mes
Hipoteca
%
El resultado de esta simulación es orientativo. Los datos indicados no corresponden a condiciones reales de productos y no implican compromiso, obligación o vínculo jurídico-legal para el Grupo Tecnocasa.

Solicita un asesoramiento

Introduce tus datos
GRACIAS POR CONTACTAR CON NOSOTROS.
Esta oficina de Kìron se pondrá en contacto contigo lo antes posible para ofrecerte un asesoramiento financiero más completo y acorde a la información que nos has facilitado.
Franquiciado
Estudio Inmobiliario Barrio De Encorts Sl
Avda de la Plata, 11 46013 Valencia (V)
Avda de la Plata, 11 46013 Valencia (V) Zona: EN CORTS
LUNES A VIERNES DE : 09:30-14:00 / 17:00-20:30 SÁBADOS DE :10:00-14:00/ 17:00 - 20:00

Nuestro equipo


  • Diego Andrés Giménez
    Franquiciado
Franquiciado
Estudio Inmobiliario Barrio De Encorts Sl
Avda de la Plata, 11 46013 Valencia (V)

Franquiciado
Estudio Inmobiliario Barrio De Encorts Sl
Franquiciado
Estudio Inmobiliario Barrio De Encorts Sl

2025 Ibero Group Tecnocasa Services, S.L.U. - CIF B-65870776 - C/ Pallars, nº 1-3 Parque de Negocios Mas Blau II, 08820, El Prat de Llobregat (Barcelona-España). Red en franquicia - Cada sociedad franquiciada tiene su propio titular y es independiente del franquiciador.

Política de privacidad | Aviso legal | Pólitica de las Cookies | Información al consumidor | | Canal ético